新型凿岩安全保护台车的设计与实现
随着电网安全稳定经济运行要求不断提高和新能源在电力市场的份额快速上升,抽水蓄能电站开发建设的必要性和重要性日益凸显。根据水电发展“十三五”规划,“十三五”期间全国将新开工常规水电和抽水蓄能电站各6000万kW左右,新增投产水电6000万kW,抽水蓄能电站正处于大规模建设时期。
隧道施工是水利水电建设工程的重要组成部分,施工过程中机械设备的选型与配套是影响施工效率的主要因素之一,对于隧道施工而言意义重大,它不仅关系着施工的速度,而且会影响安全、质量和效益。目前,水利工程小洞径洞室开挖主要采用钻爆法。钻爆法因其具有经济高效、地质适应能力强等优势,已经在国内外水电、矿山、公路、铁路等许多工程领域的隧道建设中被应用,但该开挖工法也存在投入人员多、劳动强度高、作业环境条件差、钻进速度慢等缺点。在施工机械的使用方面,抽水蓄能电站在中小型断面洞室开挖、支护过程中常使用施工单位自制普通台车,配合手风钻钻孔。台车一般由施工单位在现场焊接制作,车体一般为门架式,底部安装滚轮或随洞室开挖支护用装载机等机械举起向前推进,操作方式原始,且门架式台车尺寸固定,不能适应不同尺寸的洞室。另外,台车上部一般无防护功能,施工人员在进行开挖支护作业时可能被落石砸伤,存在一定的安全隐患。因此,针对抽蓄电站隧道施工设计制造一种对洞室施工作业人员(开挖支护等)具有一定的安全保护、方便移动且功能转换操作简便的多功能新型凿岩台车十分必要。
新型凿岩安全保护台车按河南洛宁抽水蓄能电站通风安全洞断面图进行设计。该抽水蓄能电站位于河南省洛阳市洛宁县涧口乡,处于河南电网、华中电网负荷中心,总装机容量140万kW,安装4台单机容量35万kW可逆式水泵水轮发电机组,设计年抽水电量19.88亿kW•h,设计年发电量14.91亿kW•h,施工总工期75个月,计划于2026年全部投产发电。电站建成后主要承担河南电网的调峰、填谷、调频、调相及紧急事故备用等任务,对优化河南地区电源结构,缓解河南电网和华中电网系统调峰调频压力,优化提高风电、光伏等新能源的消纳和区外来电的接纳能力,促进清洁能源发展,推动地方产业结构优化调整,建设国家清洁能源示范省具有十分重要的意义。
1 新型凿岩安全保护台车的设计
1.1 设计思路
新型凿岩安全保护台车通过改进常规开挖支护台车,实现了台车宽度和高度在一定范围内的自动调节,适用于不同断面洞室开挖支护;安装移动装置、液压动力系统,实现台车自动移动。在车体上安装防护罩,在进行开挖支护作业施工前,通过防护罩实现点、面结合的安全防护功能,最大程度降低了施工安全风险。并结合洛宁抽蓄电站通风兼安全洞工程开挖特点,最终优化为多功能新型凿岩台车方案。
设计方案依据围岩松动圈理论和新奥法支护原理,通过计算相关洞室Ⅳ类松动圈范围和可能掉落的冲击力,防护罩按照台车所适用的最大断面洞室Ⅳ类围岩松动圈内岩石全部脱落的冲击力设计,可���防护Ⅳ类及较好围岩段洞室坍塌。Ⅴ类围岩施工时一般采用超前小导管、管棚等强支护方式施工,不容易坍塌,且比例在洞室占比很小,未考虑防护Ⅴ类围岩松动圈脱落的冲击力。
1.2 设计要点
(1)围岩松动圈内岩石掉落冲击荷载的确定是关键。考虑最不利因素时,爆破松动后围岩应力重新分布形式难以计算,钻孔作业时震动会对围岩应力分布造成影响。
(2)台车防护罩和支撑装置联合动荷载或受力分析,以便于确定台车防护罩材质、厚度和可伸缩支撑装置的尺寸。
(3)因台车在厂家生产,台车液压移动动力装置、台车防护罩、可伸缩支撑装置、操作平台等相关部件如何有效组合是一个难点,需将台车设计模块化,以便于推广应用。
1.3 台车的设计方案
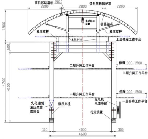
由顶防护架体总成、液压机构、门架总成、主行走机构、液压控制系统、电气控制系统等组成,设计方案图如图1所示。

1.4 台车主体部分的设计与研究
(1)主体台车支撑部分。根据通风兼安全洞等电站主要洞室工程断面尺寸,台车支撑高度为6~9m,宽度不小于7m,长6m左右;台车中间可允许运渣车、挖掘机及水泥搅拌车通过,空间高度大约为4m,宽度为3.8m左右;两侧及前后设置吊耳,工作平台长度不小于3.5m,宽度约2m;两边沿洞身方向各设工作平台2个,并具备可升降功能。该尺寸将满足洞室开挖支护时台车支护和升降功能需要,支护高度、宽度能够调整,可适应大小拱形、矩形和梯形等不同形状的施工面,并使用新材料,满足抗弯、抗折和抗冲击的要求,主体防护装置支撑力大于6000kN,支撑强度大于1MPa,而且保证其纵横向稳定性及相应的支护强度。
(2)移动装置。设计台车移动装置和动力,配置自动行走电力驱动装置,行走装置采用履带式,移动速度为2km/h,爬坡能力具备攀爬不小于12%的坡度,并能在坡道上启停和转向。
(3)安全防护设施。设计制造台车上部安全防护支撑装置。根据洞室Ⅳ类松动圈范围和可能掉落的冲击力,按照台车所适用的最大断面洞室Ⅳ类围岩松动圈内顶拱岩石全部脱落的冲击力设计防护罩。防护罩材质拟选用钢板或轻质高强度新材料制作以减小台车自重及液压承载力等,并能满足操作人员垂直往上钻孔需要。
(4)自动调节设备。自动调节设备可采用液压驱动等方式,从而实现台车自动调节功能。台车高度调节范围应不小于6~9m。调节设备应采用电动启停方式,并具备实地操作和遥控操作、支撑力(压力)显示及报警功能,能随时监控台车各部分的工作状态。其能够根据施工需要,实现作业平台的升降功能。
(5)作业平台设备。该台车共有3层作业平台:一层作业平台为地面;二层作业平台位于液压式支架两旁,沿洞身开挖方向长度不小于3.5m、宽度不小于2m,二层作业平台升降高度范围为2~5m;三层作业平台位于最上方,作业平台长度不小于3.5m、宽度约2m,三层作业平台升降高度范围为5~8m。作业平台四周均具备防护栏,防护栏高度1.2m,要求可以承受8人同时钻孔作业的动荷载。
2 新型凿岩安全保护台车的特点
(1)与传统的凿岩台车相比,文章提出的凿岩安全保护台车对洞室施工作业人员(开挖支护等)具有一定的安全保护,在作业过程中可伸出具有伸缩功能的作业臂和防护罩,从而支撑岩壁;采用主动支护方式对顶拱及侧壁松散岩体、零星岩石进行支护,以防坠落伤人,能对施工人员形成一定保护作用,降低施工安全风险。
(2)现有的门架式台车尺寸固定,不能适应不同尺寸的洞室,而新型凿岩安全保护台车通过作业臂的升降,可适用于不同洞径洞室开挖,能提高施工效率,节约施工成本。
(3)抽蓄电站施工中目前所用台车一般由施工单位在现场焊接制作,车体一般为门架式,随洞室开挖支护用装载机等机械举起向前推进,操作方式原始,且台车因依靠其他机械前行效率低下,影响施工作业进度。新型凿岩安全保护台车具备移动装置,可缩短台车转移时间,提高作业效率。此外,台车的驱动采用电力驱动方式,可以减少废气排放,从而改善洞室作业环境。
3 结束语
随着抽水蓄能电站的大规模开发,大量的洞室开挖工程使得凿岩台车具备广泛的应用需求。文章提出的具有一定的安全保护、方便移动且功能转换操作简便的多功能台车,将直接为隧洞开挖支护作业人员提供安全防护,大大提高施工的安全性和可靠性,同时通过结构的优化设计提高了台车的适用性和机动性。台车的设计与实现不仅能够直接服务于洛宁电站工程建设,还可在抽水蓄能电站及常规水电站隧洞开挖支护作业中应用,后期亦可在矿山、公路、铁路等工程领域推广,具备良好的推广前景。