Boomer S1D凿岩台水系统故障原因分析及处理方法
阿特拉斯·科普柯(AtlasCopco)公司生产的BoomerS1D型凿岩台车,是适用于采矿和隧道开挖作业等作业的地下凿岩设备,适用于断面面积不超过31m²的小型巷道和隧道。这款台车的BUT29钻臂上的双三角架可用于快速、精确的定位以及在所有方向上实现液压平行保持。由回转压力控制的给进系统具有防卡钎功能,改善了COP凿岩机的钻杆经济性。低排放的柴油发动机性能强劲,对环境的影响更小。
随着矿山的高速发展,矿山设备越来越先进,自动化程度越来越高。大屯锡矿现在使用的凿岩设备主要以BoomerS1D为主,在使用过程中我们发现S1D的水系统存在缺陷,针对这一缺陷,我们找到了相应的处理措施。
1 BoomerS1D凿岩台车水系统原理
BoomerS1D凿岩台车的水泵是由液压马达驱动,输入水压应为4~6bar(最低水压为2bar),输入压力受安全阀限制,最高为14bar。水泵由一台5cc的液压泵驱动,水泵出口连接了液压油水冷散热器,途中有B141监测水流量,Y110水流电磁阀控制开、停水流,水流通过钻杆流至钻头端部进行冲渣。在此过程中,水流的作用除了用于工作中冲洗钻孔外,还有一个重要功能就是为整车液压系统降温,保证液压系统温度处于合理的恒定状态。
2 水系统故障情况及原因分析
在大屯锡矿三坑使用BoomerS1D凿岩台车以来,连续出现多台S1D凿岩台车液压油不同程度乳化现象,针对这一现象,我们进行了认真分析,液压系统进水的原因有四种:
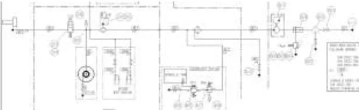
(1)液压油储存、加注过程中不慎进水。(2)液压系统清洗、换油、维修过程中进水(3)潮湿工作环境的水污染(4)液压系统密封不良导致外来水分进入。经现场检查,排除其他可能性,确定了水是由于液压系统密封不良导致。BoomerS1D凿岩台车液压油与水系统有交集的地方只有凿岩机部分和散热系统,经现场更换了多次密封,问题依旧,最终更换了凿岩机,重新更换了液压油,用了一周左右,问题仍然存在,最终确定是冷却系统出了问题。经过与阿特拉斯售后服务工程师进行多次技术交流,通过对图纸进行分析发现S1D与K41X冷却系统存在差异。如下图:


经过现场核对,发现K41X的冷却器位于水泵后方,水泵启动后,水流先要经过冷却器,后进入水泵;而S1D则是先由水泵加压之后流经冷却器。外部输入水压不低于2bar,由水泵加压之后,水压可达14bar甚至更高(10~60bar),而散热器中流动的液压油是直接回油箱,压力较小,冷却水压力升高后导致冷却器进行细微渗漏,最终油水混合后进入液压系统。
3 解决办法
将W1管直接接入散热器入口,出口的WP2管接入水泵,然后将WP1与WP3进���短接,从而形成经过散热器的水流压力和输入水流压力一致,经过水泵加压的高压水流直接流向钻头端部。
4 取得效果
经改动后,重新更换了液压油,之后未出现过液压油乳化现象,S1D凿岩台车运行稳定,无任何不良影响,故障消除。
5 小结
对BoomerS1D凿岩台车液压油乳化故障诊断,重点要对液压系统和进水系统进行分析,找准问题所在,然后对照台车的冷却系统进一步分析判断,可快速找到故障原因,处理故障,节约设备的使用成本,增加使用寿命。