安百拓液压凿岩机活塞受力面积分析与设计变量述评
1 液压凿岩机冲击活塞的结构尺寸
1.1 冲击活塞各段直径参数与设计方法
冲击活塞一般可分为6段,各段参数符号意义见图1,设计原则见表1。


1.2 活塞质量
活塞质量的设计计算方法见表2。

2 活塞面积参数的计算公式
凿岩机活塞面积参数计算公式见表3。

3 安百拓双控式凿岩机冲击活塞结构参数
3.1 安百拓双控式凿岩机的结构原理
安百拓双控式凿岩机的结构原理见图2。

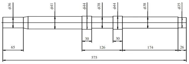
3.2 安百拓双控式凿岩机活塞结构尺寸举例
安百拓双控式凿岩机活塞结构尺寸与标注方法见图3和图4。


3.3 安百拓双控式凿岩机活塞直径参数
安百拓双控式凿岩机活塞直径数据见表4。

3.4 安百拓双控式凿岩机活塞承压面积
安百拓双控式凿岩机活塞承压面积见表5。

3.5 安百拓双控式凿岩机活塞受力面积比
安百拓双控式凿岩机活塞受力面积比见表6。

4 安百拓后控式凿岩机冲击活塞结构参数
4.1 安百拓后控式凿岩机结构原理
安百拓后控式凿岩机,后腔环形面积见图5,后腔圆形面积见图6。


4.2 后控式冲击系统活塞结构尺寸
后控式冲击系统活塞结构尺寸示意图见图7。对于性能参数(冲击能与冲击频率)相近的凿岩机而言,后腔式活塞后腔承压面积远远大于双控式活塞后腔承压面积。

4.3 安百拓后控式凿岩机活塞直径参数
安百拓后控式凿岩机活塞直径数据见表7。

4.4 安百拓后控式凿岩机活塞承压面积
安百拓后控式凿岩机活塞承压面积见表8。

4.5 安百拓后控式凿岩机活塞受力面积比
安百拓后控式凿岩机活塞受力面积比见表9。

5 基本三段法的设计变量与优化理论
5.1 基本三段法
我国在1970年代初期已经研发液压凿岩机,几乎与国际凿岩机产品面市同步。从1980年开始,我国高校学者发表了许多关于液压凿岩机设计方法的论文,其中最重要的内容是关于液压凿岩机活塞运动三段法分析,以及在三段法基础上建立的设计变量与优化理论。
所谓三段法是将冲击活塞的一个运动周期分为回程加速、回程制动与冲程三个阶段,在三个阶段中,活塞受力各自保持恒定,
所谓基本三段法,是假定回程加速时活塞受力恒定,回程制动活塞受力与冲程活塞受力恒定且相等,也就是回程制动减速度与冲程加速度相等,参见图8和图9。

vm-冲击速度(冲程最大速度);Vmr-回程最大速度;T-活塞一次工作周期时间;tr-活塞回程时间;tp-活塞冲程时间;tr1-活塞回程加速时间;tr2-活塞回程制动时间

基本三段法,高度简化了活塞受力状况,设计参数之间关系式简单明确,计算简单易行,具有极其重要设计应用价值。适合于已知性能等参数(冲击能,冲击频率,冲击末速度与系统油压),求凿岩机结构等参数(活塞质量,活塞行程,活塞前后腔面积与输入流量),但是其计算结果的准确性较差。
5.2 设计变量的定义
将一个无量纲系数称为设计变量,这个无量纲系数可以是:
1.冲程时间与活塞运动周期之比𝑅𝑡,𝑅𝑡<1;
2.活塞行程与可能最大行程之比𝑅𝑠,𝑅𝑠<1;
3.活塞回程加速度与冲程加速度之比𝑅𝑎𝑐,𝑅𝑎𝑐<1;
4.活塞冲程受力面积与回程受力面积之比𝑅𝐴,𝑅𝐴>1。
对于已有的凿岩机产品,前面3种设计变量(𝑅𝑡,𝑅𝑠,𝑅𝑎𝑐),一般不可能得到,只能在凿岩机运行时,实测凿岩机工作状态参数,对实测曲线分析整理计算才能得到,因此称之为抽象设计变量。各种因素都会引起工作状态参数的变化,因此抽象设计变量的数值也是变化的和不确定的。不确定的值是不宜作为凿岩机性能的评价指标。
只有活塞冲程受力面积与回程受力面积之比𝑅𝐴的数据是静态测量的,是确定的,非常适合作为凿岩机性能的评价指标。
在基本三段法基础上推导出来的各种设计变量,不是相互独立,而是相互关联的,只要规定其中任何一个设计变量,其他设计变量都可以据此唯一地推导出来:
𝑅𝑡=𝑓(𝑅𝐴);𝑅𝑠=𝑓(𝑅𝐴);𝑅𝑎𝑐=𝑓(𝑅𝐴)。
5.3 优化设计理论
已设计变量为自变量,建立某一目标函数,求目标函数的优化值,与目标函数优化值对应的设计变量就是最优设计变量。
目标函数可以是以下4种:
1.冲程时,最大瞬时流量最小;
2.回程时,最大回油瞬时流量最小;
3.蓄能器容积变化量最小;
4.能量利用效率最高。
在最优设计变量的基础上,求得活塞前后腔面积、冲程时间、回程加速时间与回程制动时间等一系列设计参数,称之为冲击机构优化设计。
6 活塞运动周期中受力面积比
6.1 活塞受力面积比的定义与计算
在凿岩机运动周期中,活塞冲程与回程加速受力面积之比𝑅𝐴的计算方法可以分为双控式与后控式两类,详见表10。

6.2 设计变量优化理论普适性问题
6.2.1 对于双控式与后控式凿岩机的普适性问题
文献[2]、[3]、[4]、[7]、[8]都指出,基本三段法的设计变量理论对双控式和后控式凿岩机都具有普遍意义。但是观察表10双控式与后控式活塞受力面积比的定义与计算值可以看出:
双控式冲程与回程受力面积比:𝑅𝐴𝑑≈(1.7~2.5)。
后控式冲程与回程受力面积比:𝑅𝐴𝑏≈(2.6~5.9)。
双控式与后控式受力面积比的数据有很大差距,数值范围没有重叠之处,双控式最大值,也小于后控式的最小值,说明对于不同控制方法的凿岩机,设计变量优化不是普适理论,如果是普适的,同一种设计变量,数值上不应该有如此大的差异。
6.2.2 对于双控式凿岩机的普适性问题
双控式凿岩机是安百拓公司面市最早与销售最多的产品,本文搜集了11个双控式产品型号的直径尺寸。根据本文搜集的数据计算,双控式活塞的冲程与回程受力面积比𝑅𝐴𝑑≈(1.7~2.5)。双控式凿岩机是安百拓推出多年的成熟产品,设计变量𝑅𝐴𝑑数据离散度较大,不能据此评价凿岩机性能与设计的优劣。
6.2.3 对于后控式凿岩机的普适性问题
安百拓后控式液压凿岩机是近年推出的较新产品,性能和质量优秀,是客户公认的。本文收集的安百拓后控式凿岩机,冲程与回程受力面积比𝑅𝐴𝑏≈(2.6~5.9)。数据范围内的最大值是最小值的2倍以上,数据的离散程度很大,无法据此评价凿岩机设计与性能的优劣,也得不出凿岩机是按照哪一种优化原则进行设计的。可见,基于基本三段法的设计变量优化理论不是普适的。在此理论基础上发表的论文的实际意义是可以商榷的。
6.3 其他设计变量的普适性问题
基于基本三段法的所有设计变量都是互相关联的,都可以用简明关系式互相表达。既然设计变量活塞受力面积比𝑅𝐴,作为凿岩机性能的评价指标,普适性较差。那么其他所有其他种类设计变量优化理论普适性也较差。
6.4 活塞受力面积比𝑹𝑨对凿岩机的评价作用
活塞冲程受���面积与回程受力面积比𝑅𝐴,是一个实际的而不是抽象的设计变量,数据准确恒定,𝑅𝐴更适合于作为凿岩机冲击性能的评价指标。但是,根据§6.2所述,𝑅𝐴作为一种设计变量,数据范围很大,无法说明哪一个或哪几个𝑅𝐴值的目标函数是最优的。需要大量搜集凿岩机活塞结构参数、工作参数和性能参数,进行数据统计和试验研究,对于活塞受力面积之比𝑅𝐴的评估作用,做出一个趋势或概率判断。
7 液压凿岩机产品参数的数据分析
7.1 凿岩机参数的分类
凿岩机参数可以分为三类
1.结构参数(硬参数),含活塞直径和活塞质量等;
2.工作参数(软参数),含冲击油压与流量;
3.性能参数(软参数),含冲击能,活塞行程,冲击频率、周期、冲程时间等等。
硬参数是指参数数值准确,在工作中数值恒定不变的参数。软参数是指参数数值是一个范围,在工作中,随工况变化而变化,不是一个确定的数值。
7.2 凿岩机参数搜集方法
结构参数只能测量得到或者从图纸上得到,搜集结构参数相对困难,但是只要肯花精力和时间,还是可以搜集到的。本文中安百拓凿岩机活塞直径数据来自于本文作者搜集的资料,数据如果有误,还请读者赐教。
工作参数与性能参数一般可以在产品样本和说明书中搜集。
本文没有搜集安百拓凿岩机活塞质量,也没有搜集安百拓凿岩机工作参数和性能参数,更没有进行结构参数、工作参数与性能参数之间关系与规律的整理与分析。希望有人继续进行凿岩机数据搜集与分析整理工作。
7.3 凿岩机数据分析的作用
数据分析在凿岩机设计、研发、产品评价方面发挥作用,我国凿岩机研究者不要只是进行理论推导,仿真计算等工作。更要搜集凿岩机结构参数、工作参数与性能参数三类数据,整理分析,挖掘数据的有用价值,提升设计与评价能力。
凿岩机测试数据是更加重要和有意义的数据,现在也很少报道,首先凿岩机性能测试就很少进行,即使有论文报道,测试数据的可信度也很差,离开了对测试对象、场景条件、测试方法与仪器仪表的详细说明,测试数据的意义和用途也非常有限。
凿岩机产品的市场与使用情况数据,如各个品牌与型号产品市场占有率,凿岩机凿岩生产效率,凿岩机零件寿命,维修周期等等,可以为销售和售后服务提供支持,国外产品有大量报道,国内鲜见报道。
8 改进的三段法
8.1 改进的三段法概述
中南大学何清华教授在文献[6]中,对基本三段法做了改进,主要有以下三点:
1.认为回程制动与冲程阶段活塞受力不等值,回程制动受力大于冲程受力,制动减速度绝对值大于冲程加速度绝对值;
2.引入了活塞撞击后速度反弹系数;
3.引入了液压卡紧系数、回油阻力系数、局部损失系数与泄漏系数等
文献[6]描述的凿岩机运动周期中,活塞运动速度与流量示意见图10。我们将图10所示的三段法称为改进的三段法,根据以上改进,文献[6]推导了凿岩机设计各个参数的计算公式,因为考虑的因素多,计算公式比基本三段法复杂得多,但都是代数公式,再复杂的代数方程也比微分方程数值求解要容易得多,计算速度也快得多。改进的三段法考虑的因素较多,更加符合实际工况,因此计算结果也相对准确,是对基本三段法理论的重大发展。

8.2 改进的三段法实际应用
文献[6]将回程承压面积、冲程承压面积、活塞质量、活塞行程与冲击输入流量等5个参数作为输入,计算输出了冲程最大速度、回程最大速度、冲击压力、运动周期,冲程时间与周期时间比、冲击机构效率等参数,参见表11。

文献[6]比较严谨,将输入参数与输出参数都列表说明。
文献[6]特别指出输入流量给定数据,但不包括阀所消耗部分,文献没有说明是怎样从输入流量中刨除阀所消耗部分的。
文献[6]给定输入流量,对三种不同结构参数的后控式液压冲击机构进行了测试,测试数据见表11。实测输出数据与理论计算输出数据一并列入,括号中的数字为理论计算数据,实测值与理论值的误差较小,说明改进的三段法计算是可信的。
8.3 活塞冲程与回程受力面积比的意义
文献[6]中,是没有活塞受力面积比𝑅𝐴𝑏,这是本文作者根据表11提供的前后腔承压面积计算出来的,目的是为了分析受力面积比𝑅𝐴𝑏对凿岩机性能的评价作用。文献[6]中三种活塞结构的设计变量与冲击能量效率数据见表12。

三种活塞结构中,结构一的冲程与回程受力面积比𝑅𝐴𝑏=0.64,结构二的𝑅𝐴𝑏=3.16,结构三的𝑅𝐴𝑏=2.35。
只有结构二的𝑅𝐴=3.16,在安百拓的𝑅𝐴𝑏≈(2.6~5.9)数据范围之内。其他两种结构的𝑅𝐴𝑏数据,都小于安百拓后控式数据𝑅𝐴𝑏≈(2.6~5.9)。
表中数据表明,结构二的冲程与回程受力面积比最大,𝑅𝐴𝑏=3.16,冲程时间与活塞运动周期之比最小,𝑅𝑡=0.355,活塞结构二的能量效率最高,𝜂=0.605,也就是说结构二的冲击性能是最好的。
结构一的𝑅𝐴𝑏=0.64,远远小于安百拓𝑅𝐴𝑏≈(2.6~5.9)的范围,说明结构一的设计是极不合理的,因此,结构一的冲击能量效率最差,𝜂=0.369≪0.605。
结构三的𝑅𝐴𝑏=2.35,小于安百拓𝑅𝐴𝑏≈(2.6~5.9),能量效率𝜂=0.546<0.605,这说明结构三的设计没有结构二的好。由此可以看出,如果凿岩机活塞冲程与回程受力面积比𝑅𝐴𝑏比较大,则冲程时间与活塞运动周期之比𝑅𝑡比较小,凿岩机能量效率𝜂比较高。
综上所述,以运动周期中活塞受力面积比𝑅𝐴𝑏,作为凿岩机冲击机构性能与设计优劣的评价指标,是可行的。
8.4 改进的三段法特点
1.改进的三段法求出的设计变量之间不再具有简单关系式。例如,表12中,活塞冲程与回程受力面积比𝑅𝐴𝑏,与冲程时间与运动周期之比𝑅𝑡之间,不再有简明关系式。
2.基本三段法的冲击效率目标函数没有极大点,但是,改进的三段法可能有极大点,可惜的是文献[6]没有进行优化计算。文献[5]、[9]、[10]采用改进的三段法理论,而且考虑了换向阀耗油量,计算结果表明,冲击能量效率目标函数有极大点。
8.5 改进的三段法的应用价值
文献[6]用改进���三段法根据凿岩机结构参数求冲击性能参数,并且作了测试验证,工作做得很好。根据结构参数求性能参数,一般采用数值计算仿真法。采用改进的三段法也很好,根据结构参数求性能参数主要用于仿制阶段,必须先有实物样机或图纸,才能进行性能参数的验证。
真正独立设计新的凿岩机,是根据冲击能、冲击频率、冲击末速度、工作压力参数,计算求得凿岩机主要结构参数和流量,是不可能采用数值计算仿真方法。
用基本三段法计算求得凿岩机结构参数,准确性较差,只有改进的三段法才能提高设计计算的准确性,文献[6]没有进行这方面的工作,是十分可惜的。而且,现在也很少看到计算求得凿岩机结构参数这方面的文献。
目前,求性能参数的论文大多数都是用现成软件进行仿真,像何清华教授36年前那样,自己建立数学方程、自编程序求性能参数的论文也很少了,这是凿岩机理论研究的退步。作者热切希望,由李大诒、高澜庆、杨襄壁、陈定远、何清华教授等开创的凿岩机设计理论研究工作,能够得到传承发展和推广。
9 结语
1.安百拓双控式凿岩机冲程与回程受力面积比𝑅𝐴𝑑≈(1.7~2.5),后控式冲程与回程受力面积比𝑅𝐴𝑏≈(2.6~5.9)。数据离散度很大,说明基于三段法的优化设计变量不是普适理论。
2.基本三段法的设计变量与优化理论,推导严密,逻辑自洽。但理论应有实例验证,而不能只是自我演绎与自我欣赏。希望有人研究国内外著名型号凿岩机的结构参数与性能,是否符合设计变量优化理论,并且写出论文发表。
3.本文引用了文献[6]的结构参数、工作参数与性能参数数据,得出结论:冲程与回程受力面积比𝑅𝐴,可以作为特定凿岩机性能的评价指标。
4.本文搜集的数据量太少,,希望有更多人进行凿岩机数据工作,搜集山特维克与蒙特贝凿岩机的产品数据,继续搜集更多安百拓凿岩机产品数据,整理发表与分析利用;
5.改进的三段法在计算求得凿岩机活塞结构参数的设计中有重大意义,应该完善与推广应用。